Independent Competition for Andes Sprouts Society
The competitions program was for the design and construction of (3) transient sustainable studios for resident artists: prototype. The artists are engaged in developing media art projects over multiple seasons.
“We cultivate the land and are provided sustenance in return…”
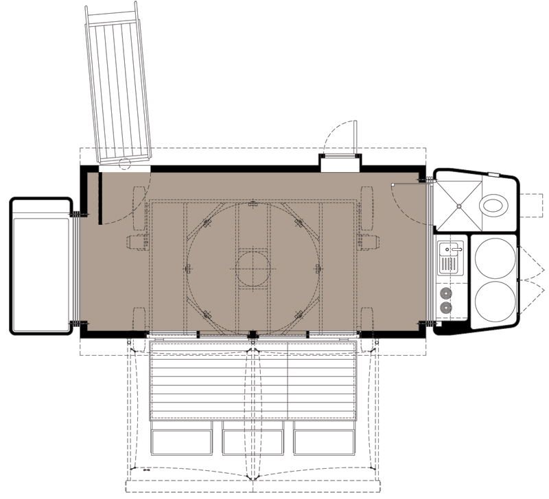
The umbilical design stems from our research into the means and mechanics of farming, the natural cycles of feeding off the land and our previous living structure investigations. Initially a salvage venture, the center pivot irrigation rigging provided a literal support construct for the main studio. The wheeled stanchion was removed and serves as a movable base. To this are grafted the studio housing, an outside deck and greywater storage. We envisioned the housing module as a 10′ x 20′ shipping container or using local salvage for stick framing; as such, the design accounts for either situation.
The projects placenta, an insulation and fiberglass module, is attached to the housing module and supplies remote services when required. This umbilical links the three modular units together sharing water, power and centralizing removal of black water.
The 268 square foot structure is energy self sufficient, relocatable and low maintenance. The materials, a large portion of which are salvage from other local projects, include plywood, standard dimensional lumber, fiberglass, insulation, metal roof panels and schedule 40-pipe. The material cost for each unit is estimated at $8720 and takes into account salvaged material and all labor being donated.
The site is located in the Catskill Mountain region of Delaware County in New York. The local topography includes a pond, meadows and an adjacent pine forest. Being a mountain region, the weather changes rapidly.
